3317 Knotts Drive Montgomery AL 36116

Price: $334,400 MLS # 583594 Status: Active

  • single_bed 4
  • bathtub 2
  • square_foot 2,256
  • home Residential - Single Family Residence
  • calendar_month 2026
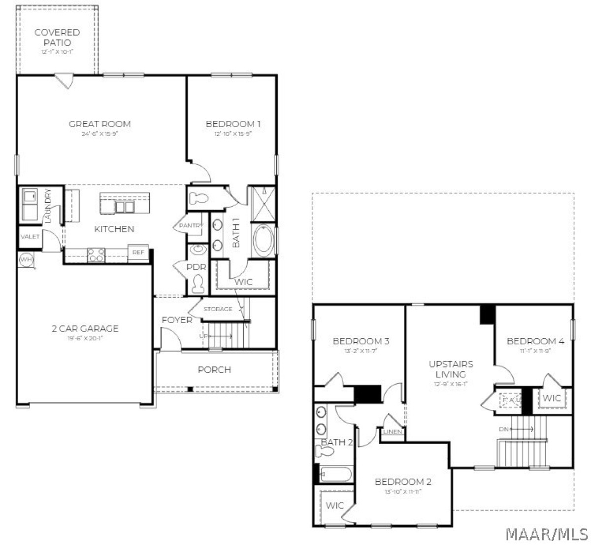
Welcome to 3317 Knotts Drive, our Belfort is a two-story floorplan featured in our Chase Creek community in Montgomery, Alabama. This beautiful home is an open space layout that offers a practical design with 4-bedrooms and 2.5-bathrooms with over 2,200 square feet. The primary bedroom is conveniently located downstairs, while the other bedrooms and an additional living area are upstairs. As you enter the home, off to the side is the staircase leading to the upper floor. The lower floor offers a half bath for convenience to guests and an open concept allowing for inclusiveness between the kitchen and living area. The kitchen offers shaker-style cabinetry with an island and quartz countertops. To the back corner of the house, you’ll find the primary bedroom with a private ensuite offering all the relaxing elements. It has a garden tub, standing shower, dual sink vanity, private water closet and large walk-in closet. As you reach the second level of the home, there is a great living space for family fun. There are 3- bedrooms that share a bathroom with a dual sink vanity and a shower/tub combination. The rooms upstairs have flexibility in the event you prefer a study or workout room instead. Like all homes in Chase Creek, the Belfort includes a Home is Connected smart home technology package which allows you to control your home with your smart device while near or away. Pictures may be of a similar home and not necessarily of the subject property. Pictures are representational only. Schedule your tour of the Belfort today!
Hayden Hudson Owner / Broker
Hayden Hudson

(334) 467-1212
Email Directly

Features

  • County Montgomery
  • Property Sub Type Single Family Residence
  • Property Type Residential
  • Subdivision Chase Creek
  • Year Built2026
  • Appliances Dishwasher, Electric Cooktop, Electric Oven, Electric Range, Electric Water Heater, Microwave Hood Fan, Microwave, Plumbed For Ice Maker, Smooth Cooktop
  • Cooling Central Air, Electric, Heat Pump
  • Fireplace Features None
  • Flooring Carpet, Plank, Vinyl
  • Heating Central, Electric, Heat Pump
  • Interior Features Carbon Monoxide Detector, Double Vanity, Garden Tub Roman Tub, Linen Closet, Separate Shower, Walk In Closets, Breakfast Bar, Programmable Thermostat
  • Levels Two
  • Living Area Source Plans
  • RoomsTotal1
  • Construction Materials Brick, Hardiplank Type
  • Exterior Features Covered Patio, Porch
  • Foundation Details Slab
  • Garage Spaces2
  • Lot Features City Lot, Corner Lot, Subdivision
  • Lot Size Dimensions I R R
  • Parking Features Attached, Driveway, Garage, Garage Door Opener
  • Patio And Porch Features Covered, Patio, Porch
  • Pool Features None
  • PSewer Public Sewer
  • Utilities Cable Available, Electricity Available, High Speed Internet Available
  • Water Source Public
  • Elementary School Halcyon Elementary School
  • High School J A G High School
  • Middle Or Junior School Carr Middle School
  • MLS Area MajorMONT-SE Mont/W of Taylor & McLemore
  • MLS Area MinorMontgomery Area Association of Realtors
  • Builder Name D R Horton Homes
  • MLS Status Active
  • PermissionIDX
  • Year Built Details Completed
  • Year Built Source Builder
  • Association Fee$1,000
  • Association Fee Frequency Annually
  • Possession Close Of Escrow

Directions

From I-85 turn South onto Taylor Road. Once you get to the redlight at Taylor Road and Vaughn take a right and then the community will be about a mile on your left.

Request More Information

The data relating to real estate for sale on this web site comes in part from the IDX Program of the Multiple Listing Service, Inc. of Montgomery Area Association of REALTORS® Inc. Real estate listings held by brokerage firms other than Builder New Homes are governed by MLS Rules and Regulations and detailed information about them includes the name of the listing companies. This information provided is for consumers' personal, non-commercial use and may not be used for any purpose other than to identify prospective properties consumers may be interested in purchasing. Information herein is believed to be accurate and timely, but no warranty as such is expressed or implied. Listing information © 2018 Multiple Listing Service, inc. of Montgomery Area Association of REALTORS®, Inc.

Building Legacies To Last a Lifetime!

DISCLAIMER: This website content is provided on an "as is" basis and without warranties of any kind either expressed or implied. All information is believed to be accurate but is not guaranteed and is subject to change. The content on this website is provided solely for your information and convenience. Prices and dimensions are subject to change and are not final representations.