34 Lorie Lee Loop Deatsville AL 36022

Price: $372,000 MLS # 581957 Status: Active

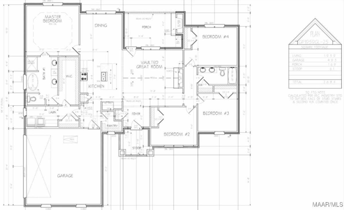
  • single_bed 4
  • bathtub 2
  • square_foot 1,959
  • home Residential - Single Family Residence
  • calendar_month 2026
New Construction in the Highly Desirable Holtville School District! All finishes, colors, photos, descriptions etc. are ex. of builders' product. Builder requires appointment before going to property. Welcome to Grace Landing—one of Holtville’s newest developments! This beautifully crafted new construction home offers a functional and stylish layout designed for both comfortable living and entertaining. Full privacy fence and refrigerator included! Step inside to an open-concept living and kitchen area, complete with a cozy gas fireplace as the centerpiece. The kitchen features abundant cabinet and counter space, ideal for meal prep, gatherings, and everyday convenience. Just off the kitchen, the dining area is perfectly placed for both casual and formal meals. The home offers a split floor plan for added privacy. The spacious primary suite is tucked away on one side and includes room for a full king-size set, a large walk-in closet, dual vanity, and a separate freestanding tub and shower. On the opposite side, you’ll find three generously sized guest bedrooms and a full guest bath with a large vanity and tub/shower combo. Out back, enjoy the perfect setup for entertaining or relaxing year-round with a covered patio and wood-burning fireplace. Additional features include energy-efficient spray foam insulation in the attic and a tankless water heater for added comfort and cost savings. Use 4375 Hogan Rd for GPS purposes. Official address to be assigned. All finishes, colors, photos, and descriptions are examples of builder’s previous work and may vary. Call today to schedule your private showing!
Hayden Hudson Owner / Broker
Hayden Hudson

(334) 467-1212
Email Directly

Features

  • County Elmore
  • Property Sub Type Single Family Residence
  • Property Type Residential
  • Subdivision Grace Landing
  • Year Built2026
  • Appliances Dishwasher, Gas Range, Gas Water Heater, Plumbed For Ice Maker, Tankless Water Heater
  • Cooling Central Air, Ceiling Fans, Electric
  • Fireplace Features One, Gas Log, Outside
  • Flooring Plank, Tile, Vinyl
  • Heating Central, Electric
  • Interior Features Double Vanity, Garden Tub Roman Tub, High Ceilings, Pull Down Attic Stairs, Separate Shower, Breakfast Bar, Kitchen Island
  • Levels One
  • Living Area Source Plans
  • RoomsTotal9
  • Construction Materials Hardiplank Type, Stone, Foam Insulation
  • Exterior Features Porch
  • Foundation Details Slab
  • Garage Spaces2
  • Lot Features Outside City Limits, Level, Subdivision
  • Lot Size Dimensions Irregular
  • Parking Features Attached, Garage
  • Patio And Porch Features Covered, Porch
  • Pool Features None
  • PSewer Septic Tank
  • Utilities Electricity Available
  • Water Source Public
  • Elementary School Holtville Elementary School
  • High School Holtville High School
  • Middle Or Junior School Holtville Middle School
  • MLS Area MajorWetumpka/Central Elmore Co
  • MLS Area MinorMontgomery Area Association of Realtors
  • Builder Name Sommers Home Builders L L C
  • MLS Status Active
  • PermissionIDX
  • Year Built Details Under Construction
  • Year Built Source Builder
  • Association Fee$10
  • Association Fee Frequency Monthly
  • Possession Close Of Escrow

Directions

From Wetumpka, follow Highway 111 (Holtville Road) to Holtville. Right onto Hogan Road. Left into Grace Landing. Right at stop sign. 2nd house on right.

Request More Information

The data relating to real estate for sale on this web site comes in part from the IDX Program of the Multiple Listing Service, Inc. of Montgomery Area Association of REALTORS® Inc. Real estate listings held by brokerage firms other than Builder New Homes are governed by MLS Rules and Regulations and detailed information about them includes the name of the listing companies. This information provided is for consumers' personal, non-commercial use and may not be used for any purpose other than to identify prospective properties consumers may be interested in purchasing. Information herein is believed to be accurate and timely, but no warranty as such is expressed or implied. Listing information © 2018 Multiple Listing Service, inc. of Montgomery Area Association of REALTORS®, Inc.

Building Legacies To Last a Lifetime!

DISCLAIMER: This website content is provided on an "as is" basis and without warranties of any kind either expressed or implied. All information is believed to be accurate but is not guaranteed and is subject to change. The content on this website is provided solely for your information and convenience. Prices and dimensions are subject to change and are not final representations.